-
Show project information
-
Show project information
-
Show project information
-
Show project information
-
Show project information
-
Show project information
-
Show project information
-
Show project information
-
Show project information
-
Show project information
-
Show project information
-
Show project information


Church Lane
Cottenham, Cambridge
Please take the simple Planning drawings (produced by another firm of architects) and prepare design proposals with construction information to enable the dwelling to be built.
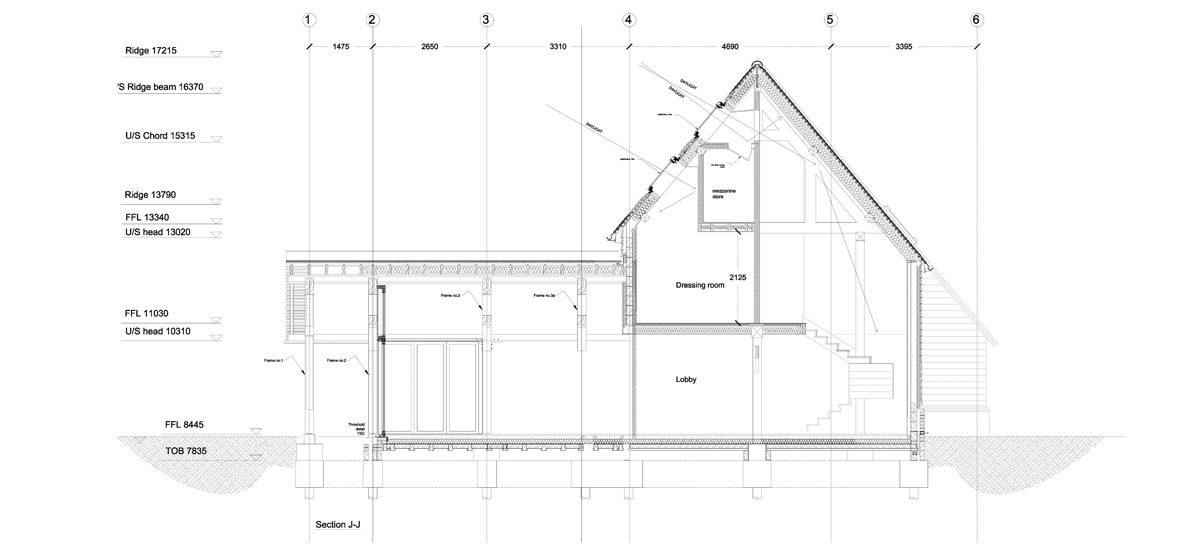
Design an elegant oak frame supporting structure and undertake amendments to the drawings as necessary.
Throughout the process of detailed & technical design the likely inherent stability of the approved design was called into question. Working closely with our Client, Consultant Structural Engineers Peter Dann Ltd and Carpenter Oak Ltd, Samskara have created an oak supporting structure that is beautiful and appropriate, while enabling the building envelope to adhere to the building lines of the original planning submission.
In brief, Samskara have given structural integrity to the original design, enhancing the approved scheme whilst being sympathetic and honest to the built form.
View video footage here.
