-
Show project information
-
Show project information
-
Show project information
-
Show project information
-
Show project information
-
Show project information
-
Show project information
-
Show project information
-
Show project information
-
Show project information
-
Show project information


Hills Avenue
Cambridge
The internal spaces and circulation are to be re-organised to provide a more significant entrance on the principal facade facing Hills Avenue, unify the external appearance of the dwelling while providing a large master bedroom with ensuite bathroom at second floor level.
The living spaces to the rear of the property must relate to a splendid, mature purple beech tree
The proposed design must reduce overlooking of neighbouring properties from the first floor.
The effective use and flow of space must be matched by the thermal performance of the house must be upgraded significantly in order to create a comfortable large spaces for entertaining while
Retain as much of the existing structure, in order to achieve the objectives without unnecessary expense.
Please make it beautiful…
By adopting a radical approach to the refurbishment and extension of a tired 1950’s dwelling Samskara have created a splendid family home.
The orientation of stair and circulation space is more often than not, key to the success of a refurbishment project.
Below, the Project Architect describes the scheme in detail:
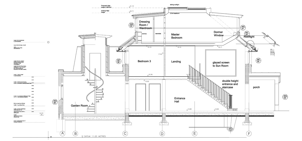
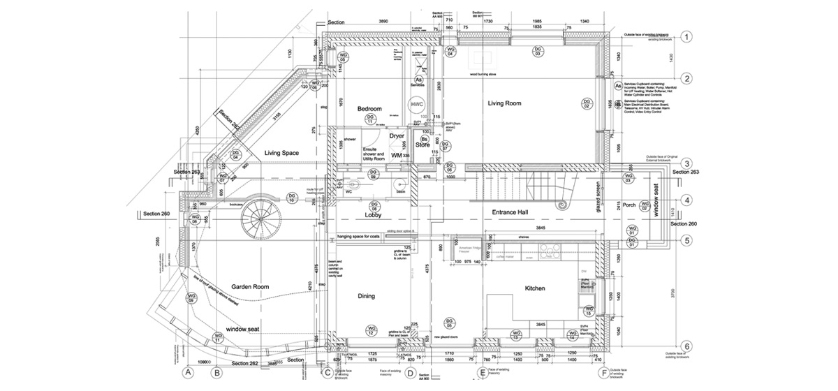
A two storey extension has been created to the south of the original house effectively replacing the previous single storey extension with roof terrace.
This extension with new roof provides a constant eaves height and a simplified building form.
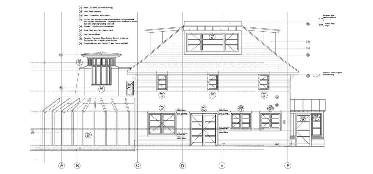
The construction works includes the application of 150mm thick insulation with a render finish to the external walls of the existing building and extensions to increase the thermal efficiency of the existing fabric, hide the unattractive existing facing brick walls which have been extensively patched and to unify the new and original facades.
The typical 1950’s articulated rustications under the eaves are recreated within the render finish. A brick plinth with special cant brick top of buff coloured bricks provides a visually solid base to the elevations.
A Sun Room is located on the first floor of the two storey extension to replacing the previous first floor external terrace. Large glazed opening windows are located at the external corner facing due south. In order to prevent solar gain within the space, external solar control louvres can be deployed and then raised into the deep eaves when not required.
It is important to note that although retaining views south at the external corner of the Sun Room, the solid walls creating the rest of the space considerable reduce the overlooking of the front garden of no.9 Hills Avenue to the current situation from the flat roof terrace.
A porch with a curvilinear rolled-lead covered roof faces the driveway to provide an attractive entrance marker leading to a magnificent new double-height staircase leading off the entrance lobby.
The new roof structure provides space for a new master bedroom with en-suite shower room and dressing room, with plenty of practical storage space.
Dormer windows at each of the four roof slopes gives a strong aesthetic, while creating ample ancillary accommodation and views from the master bedroom.
At the rear of the property a part single storey/part two storey extension replaces the existing single storey extension. The single storey Garden Room includes a curvilinear glazed roof and wall element designed to respond to the form of the mature purple beech with views up into its canopy. A barometer of the seasons…
Access to the two storey element to the rear extension is from the Garden Room via a spiral stair which is surmounted by a circular lantern under its lead roof. This fun addition to the dwelling provides pleasant views of the garden, while providing articulation and pivot point between the rectangular massing of the house and more organic form of the rear extension. Beneath the two storey element lies a self-contained bedroom with en-suite providing accommodation for an elderly relative.
No.7 Hills Avenue has been shortlisted in the Cambridge Design and Construction Awards.
View video footage here.
