-
Show project information
-
Show project information
-
Show project information
-
Show project information
-
Show project information
-
Show project information
-
Show project information
-
Show project information
-
Show project information
-
Show project information
-
Show project information


37 Hinton Way
Cambridge
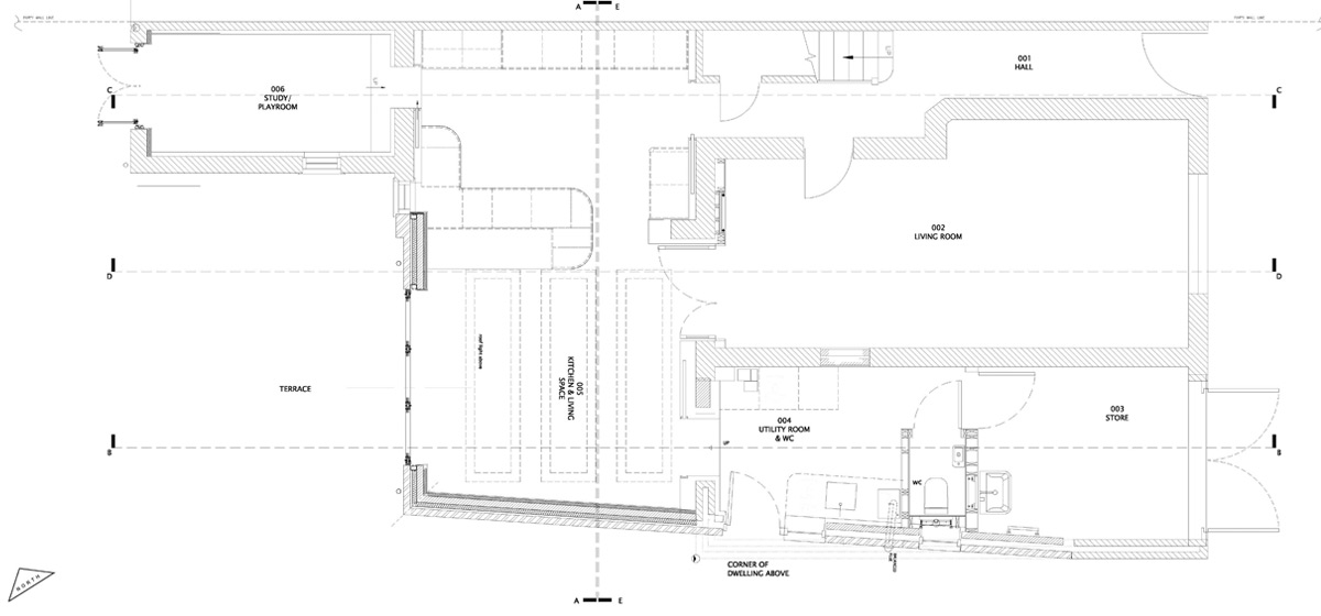
- Increase the width of the kitchen space and provide a family living space immediately adjacent to the terrace and garden.
- Daylighting to the core of the proposed house is essential.
- Create a side passageway to the rear garden.
- A side entrance to the new utility space and a future ‘homeworking’ space must be provided.
The key to the success of this simple project was two-fold; daylighting and external access to the rear garden.
Samskara identified an unused piece of land to the side of the property that reduced from a viable width to nothing at the rear of the dwelling. By supporting the first floor and skilfully introducing a supporting steel frame, Samskara were able to cantilever the first floor at the rear corner, thus facilitating a garden access.
During the construction phase Samskara identified a number of significant structural faults caused by water damage and poor construction in the 1980’s; these were rectified with underpinning and reconstruction works.
Unusually deep foundations were necessary to accommodate a significant change in ground level between nos. 37 & 35 Hinton Way. A retaining structure was then constructed for the side access and terrace.
Daylighting to depths of the house was enabled by the use of three slender bespoke rooflights, creating a very well-lit garden room leading to the terrace.
Simple, but a very nice family living space…
