London Road
Please create a dwelling adjacent to no.43 London Road which is sympathetic to its surroundings, elegant, efficient and suitable for modern living. With close ties to the area and having lived in Stapleford for many years, we intend to live in the proposed new house.
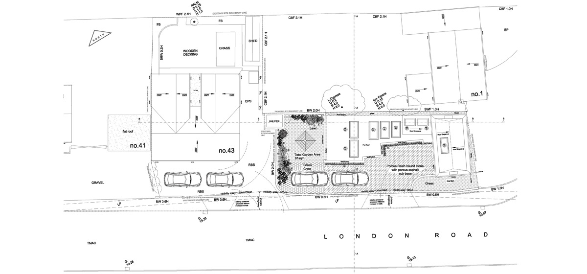
We would like the plot of no.43 to be divided to provide a new site for development (�no.45�) while providing ample parking for no.43, using existing cross-overs for access.
Ensure that the proposed house has a minimal impact upon the neighbouring properties.
Samskara have placed neighbouring properties at the forefront of the design process.
A computer mass model of the proposed dwelling was tuned with continuous reference to a computer generated sunpath analysis undertaken by Samskara, allowing a viable volume and form to be determined.
The sunpath analysis effectively demonstrates that the proposed built form will have negligible impact upon the amenity space of the neighbouring properties.
The proposed hipped mansard roof form is an effective use of space and a means of ‘turning the corner’ on this slender corner plot. The triple aspect of the proposed dwelling engages with the principal and minor roads alike.
No windows face no.1 Dolphin Way. The proposed fenestration of the West Elevation is 25metres to the East of a solitary 1st floor, obscured bathroom window in the side elevation of no.43.
It is proposed that a 2metre brick garden wall separates no.43 from the garden of the new dwelling, thus ensuring privacy for no.43. The wall will reduce to 0.6 metres in height at the site boundary adjacent to the footpath of London Road to permit sightlines from the new driveway access to no.43. The 0.6 metre garden and garden retaining wall will be built adjacent to the footpath along the length of the proposed development.
The proposed building materials allow the dwelling to sit sympathetically with its neighbouring brick buildings.
In order to elevate the quality of the dwelling in a prominent location, white painted timber sash windows are framed by carved Bath Stone jamb and head sections with York stone sills, similar to the Victorian & recently constructed properties along London Road.
At ground floor level, the walls facing the busy London Road are punctuated with few windows to mitigate road noise while allowing some connection with London Road. It is proposed that the borders to this wall are planted with climbers or fruit trees to give the appearance of a decorative garden wall enveloped in colour and texture.
We believe the modern dwelling proposed by our Client to be a positive addition to the street scene, giving substance to an existing weak section of streetscape on a principal route leading into Cambridge.


